本次为设计事务所办公室设计项目,在本次设计中设计师对于企业文化、理念与空间的大小,做了深入的研究,最后决定以分层次、分阶段的设计手法对空间进行设计。

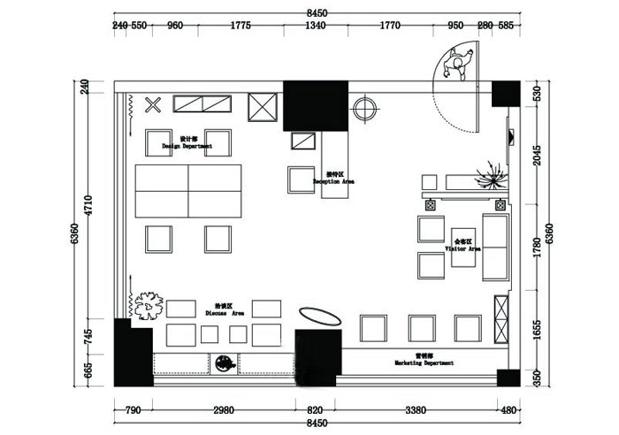
平面图:设计师在设计的时候,首先就是对空间进行划分,其中空间包括:接待区域、设计部、会客区、洽谈区域、办公区域

进门过道的设计:设计师在设计的时候将进门区域按照6:4的比例对空间进行划分,在增加空间属性的同时,也将一个空间分离成两个空间,一边为前台过道区域,一边为接待区域,这样的设计加深了空间的纵深,无形中在视觉上增加了空间的面积,同时为空间的多空间形成建立基础。

洽谈区域的设计:由于行业的不同,洽谈也就以为着修改,设计师们往往会根据客户的要求与意见,现场对设计方案进行修改,这样的设计既包含了对客户的关心又包含了工作的便捷与快速。

办公区域的设计:设计师在设计的时候,将其安置在空间的深处,设计师的工作环境往往需要安静、与空间的畅通,设计师在设计的时候,在空间中采用极简的布局方法,以此在满足办公需要的同时,为设计师打造优质的思考与办公空间。

休息区域的设计:设计师在设计的时候,将其安置在办公区域的中心区域,设计师希望设计师在工作之余可以在此处休息,整理一下思路,正在做到劳逸结合,空间的氛围也随之转化为温馨的空间氛围,让设计师感受到生活的美好。
本次设计事务所办公室设计方案讲解到此结束,希望通过三亩田设计的介绍可以为大家带来一丝灵感与创意,设计师认为企业的不同、行业的不同,设计也是千差万别。