本次办公室设计面积为1500平方,为跃层办公室设计项目,设计师在设计的时候采用简约的设计手法,最终形成现代工业风的空间格局,下面为大家讲解1500平方跃层办公室设计方案:

一层办公空间的设计:设计师在设计的时候考虑的就是功能区域的搭建,整体空间被设计师分为:前台、等待区、开放办公区、讨论区、茶水间、会议室、打印区、洗手间与景观阳台,一楼的自成一体为办公空间增加了更多可能,最后经过楼梯直上二楼。

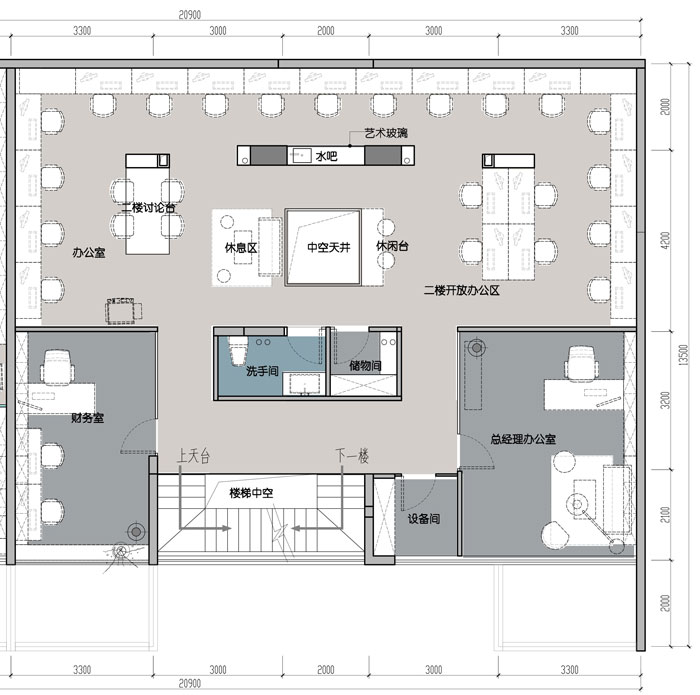
二楼区域的设计:设计师将空间分为:开放办公区、休息区域、水吧、讨论区、财务室、总经理办公室、储物间与洗手间,二楼的设计也相对独立,为企业的发展增加了很大的活性,最后经过楼梯直上三楼。

三楼区域的设计:设计师将功能区域分为厨房、餐厅、品茶聊天区、休息区域与景观阳台,三楼的设计主要为员工的日常做准备,一个家文化的办公文化就此产生,让员工可以时时刻刻的感受到企业的关心与爱护。

前台区域的设计:由于建筑本身的动线的缘故,设计师在设计的时候将其安置在进门左侧,由于空间的凹陷自然形成一个前台,设计师对空间进行分割,以柜子隔断将其他区域与前台完全隔离,以此前台空间形成。

一层办公区域的设计:设计师在设计的时候,将其安置在靠里的空间之中,一方面与消防口接近,利于人员的撤退,另一方面使员工远离喧闹,还原宁静,同时室内的各种设计屏蔽阳光的照射,让柔光偷偷照射在工作区。

二层办公区域的设计:设计师在设计的时候,将休息区域与办公区域设置在一起,同时利用原始的墙壁自然的将两个空间进行分类,这样既节约成本,也保留了办公室原有的状态,让一切都是那么自然。

经理办公室的设计:设计师在设计的时候,将空间分为3个区域,办公区域、休息区域、接待区域三个区域既满足了工作需求,同时在闲暇之余可以为总经理提供舒适的办公环境读一本书、看一部电影以此来放松心情。

楼梯区域的设计:设计师特意保留在窗户区域,这可以说一个人工设计的风景区,在困乏的时候展望开阔的室外景色,让人心中重起波澜,冲破心中忧郁与困乏,瞬间起到画龙点睛之效果。
1500平方办公室软装设计方案讲解到此完后,设计方案是设计师根据业主的需求设计出来的业主心中所期望的空间,希望通过三亩田设计的介绍,可以为需要的朋友们提供一丝灵感。