本次为金融公司办公室设计方案讲解,在办公室设计之初,设计师首先与业主进行了面对面的交流,深入了解客户的需求与企业的属性,之后开始对空间进行平面划分,将各个区域经过排比表现在平面图之上,之后经过数次的修改方案至此形成。

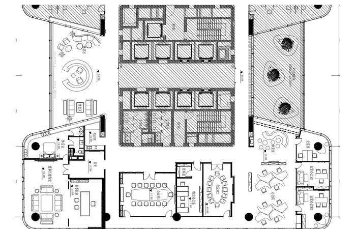
金融公司办公室平面图:设计师在设计的时候将空间按照四合院的方式进行设计,希望以此将各个空间完美的连接在一起,在动线的选择上面设计师选用回字形的设计,将动线设置在空间之外,将各个区域之间的动线相互连接,至此办公室的大厅框架跃然案上。

金融公司办公室前台设计:设计师在设计的时候,根据空间自身的特点将前台区域安置在中央,接待区域安置在两边,可以清晰明了的观赏到空间的每一个区域,真可谓是一眼便知空间的全部,这也是设计师希望看到的,在设计师看来只有让客户第一眼记住的,才能引起客户的好奇,以此产生对企业的好奇,为下一步做铺垫。

金融公司办公室办公区设计:设计师在设计的时候,采用竖性的设计,空间的纵深较深,设计师希望通过区域与区域之间的阶段设计,以此来缓解纵深带来的空间压抑,同时巨大的落地窗将阳光通过纵深投入整个空间,给人的感觉就是视觉的无限放大。

金融公司办公室会议室设计:设计师在设计的时候,将其隔离在一个独立的空间,同时空间走向与落地窗成平行向,窗外的美景进入眼底,将城市的风景尽收眼底,以此培养人的视野,同时给略显压抑的会议氛围带来一丝生机。

金融公司董事会办公室设计:设计师在设计的时候,将空间的属性定为洽谈、休息,因为董事们不会经常进入公司,企业只希望在董事们光临企业的时候可以有落脚之地,故此此地的采光极好,因为此处空间在一定程度上也代表着企业的形象。
本次金融公司办公室设计方案讲解到此结束,在本次办公室设计中,设计师价格总计对企业与空间的理解融入设计之中,其中有一丝灵感与创意,当办公室设计与办公室软装相互结合之后,整个空间诞生在我们面前。