消防安全出口指示灯的作用就是示意指示方向,指示灯分为两类,灯光类和荧光类,有指向左右的、单向指左、单向指右,下面三亩田设计为大家介绍,消防安全出口指示灯安装标准:
安装标准
安装位置

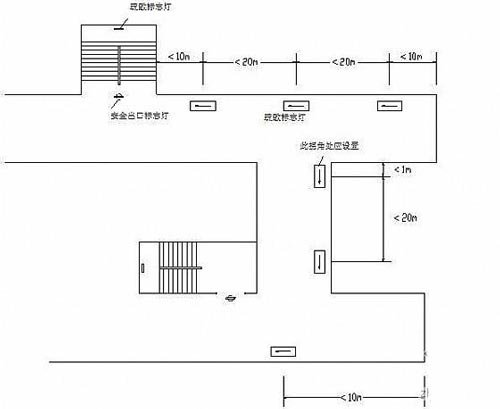
安装位置通常是室内通往室外的正常出口、应急通道的出口处。
单面标志灯

单面安全出口标志灯一般安装于出口门框的上方,如果门框太高时,可安装于门框的侧口位置。
多层和高层

1:各楼层通往楼梯间、消防电梯前室的门口;
2:大面积的厅堂、场、馆通向疏散通道和通往前厅、侧厅、楼梯间的出口。
安装高度

1:为防止火灾发生时产生的烟雾影响视觉,消防应急灯的安装高度以2-2.5米为宜;
2:安全出口指示灯的正面画面部分,尽量与安全疏散通道保持垂直角度。
安装间距

1:消防安全指示灯的安装位置通常是在公共建筑物内的安全疏散通道,方便人员疏散时,无论从哪个位置都能够找到正确的紧急逃生出口;
2:消防应急疏散通道或安全紧急出口通道安装的应急疏散指示灯间距不应大于20米。
较大空间

较大空间应按一定的距离布灯,固定于安全出口通道的立柱上面,或壁挂于墙面上,或吊挂于天花板等多种形式【安装高度一般在距地面0.3-1.0米左右】。
密集型场所

1:车站候车厅、机场候机大厅、医院、商场等人员密集型公共场所,建议适当加大布灯密度;
2:安全出口疏散指示灯,宜采用宽度大于600毫米的应急指示灯具,便于突发停电时可以更加直观,迅速地发现应急灯具所在位置,准确地引导人员安全撤离,同时也提升了使用场所光照的部分指标。
注意
1:消防应急灯的安装高度或安装位置,并不是死板的硬性规定;
2:当安装应急灯具的位置无法布线时,或此处有不可逾越的障碍物时,可通过多设置一些其他类别的消防应急灯具替代或补充;
3:此时可以适当加密应急疏散指示灯、地面疏散指示灯、墙面指示灯,或增加背胶形式的荧光安全指示牌等措施加以补充,以此满足空间对于消防应急照明、安全疏散指示的要求。
温馨提示
在文章的最后为大家总结,指示灯与指示灯之间的距离不应大于20米,消防安全出口指示灯的安装规范,安装高度及布灯密度,应该以实际安装使用的环境为准,进行不同层次的调整。