本次办公室设计面积为280平方,设计行业的服装行业办公室设计,设计师在设计的时候除了要考虑行业的特征,同时需要很好的完成功能之间的布局。

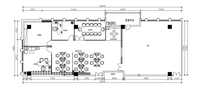
平面设计:设计师首选需要构思的就是功能区域如何搭建,其中三分之一被做为仓库做存储之用,剩下的空间被设计师按照不同的比例对空间进行划分,区域划分为:进门区域、形象墙、打印茶水区、会议室、开放式办公区、副经理办公室、总经理办公室、拍摄区域。

俯视图:通过以上的俯视图大家对于空间会有一个直观的认识,企业品牌设计在外部墙面,经过进门区域进入办公室,首先经过的就是形象墙,到达打印茶水区域,通过动线拐弯经过开放式办公区域与会议室、副经理办公室,最后到达总经理办公室与拍摄区域。

企业品牌的设计:凹行的设计让此处稍显突兀,在加上灯光的搭配是的企业品牌得以清晰的展现,同时素白色的墙面与灯光相互呼应,将企业品牌衬托到极致。

进门区域的设计:设计师将形象墙开设一个小型窗口与仓库相连,一则可以提取样品,二则可作为展示区域使用,形象墙的设计,设计师采用双重标准,使的产品展示与企业文化得以共同出现与展示。

动线的设计:在办公空间动线的设计中,设计师的目的就是采用简单的L型路线,一则使的各个空间通达,二则可以以动线为基点向周围布设空间,起到以点破面。

办公空间的设计:设计师在设计的时候,采用分与合的方式对空间进行设计,其一以隔断隔离办公空间以达到办公工位的需要,其二不管是展示柜还是办公桌椅都以合的方式进行布局。

会议室的设计:设计师在设计的时候,采用映射的方式对空间进行设计,因为空间面积的限制,设计师在其中加入了视觉延伸,以此使的会议功能与人数限制得以双重提高。

总经理办公室的设计:设计师在设计的时候,采用分对空间进行设计,对整个空间进行分布式设计,在满足办公需求的同时,为空间引入外部环境改善其空间属性,使的办公室更显人性化设计。
本次服装公司办公室设计方案到此介绍完毕,希望通过三亩田设计的介绍,可以为需要的朋友们提供一丝灵感,观看新的办公室设计方案,请持续关注三亩田办公空间设计。